PRODUCTS

최상의 품질과 서비스를 제공하는 I주I동아풍력
PRODUCTS

Air Foil Fan

날개깃의 길이가 길고 폭이 넓다.
- 대풍량,중정압(풍량 50~20000㎥/min, 풍압 60mmAq~350mmAq)
날개깃면이 이중의 상.하면으로 회전방향의 뒷쪽으로 굽은 후향깃이다.
날개매수가 적다.(10~12매 사이)

용도

반도체장비 Hoom Hood 배기용, Clean Room Booth 배기.급기용
A.H.U 등 공조장비, 건조장치 및 원자력발전소, 극소 환기용
지하철 유입 급.배기용, Air Washer용
기타 일반 산업용 강제 송풍장치
특 징
동일풍량과 정압지점에서 가장 효율이 높다. (High efficiency)
익현단면을 통해 원할한 유동성 구성으로 고속회전시에도 저소음이다. (Low noise, High speed)
풍량변동에 따른 풍압의 변화폭이 약간 있으나, 동력변화 폭이 없다. (Limit lode power curve)
Suction Vane Damper의 설치로 원할한 풍량조절이 가능하며 효율적인 에너지 관리가 용이하다. (Vaniable powe control)
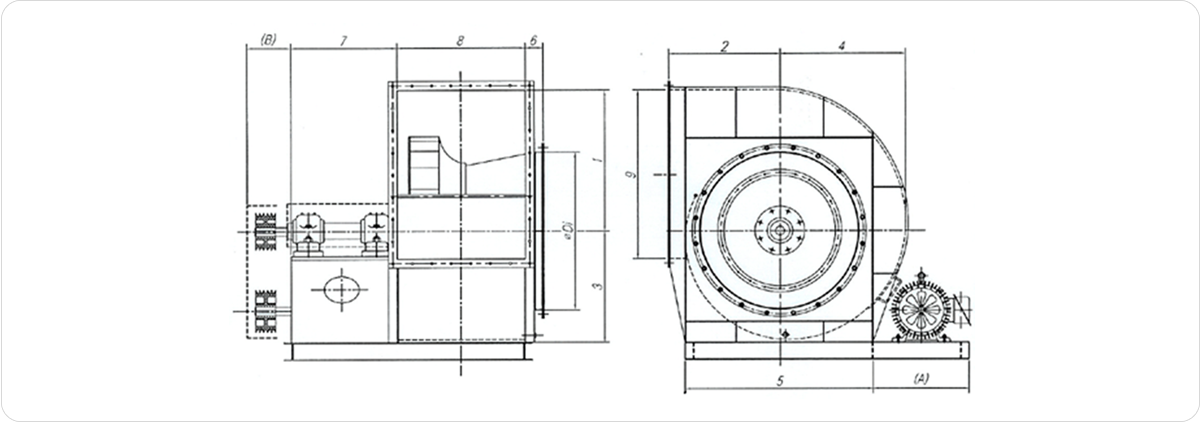
외형치수 ( V벨트, 편흡입, 편지지 기준)
About Images
외형치수
Model No. 1 2 3 4 5 6 7 8x9 ΦDi
#2.5 380 290 305 335 500 60 400 □300x400 Φ350
#3 440 335 350 385 580 60 400 □480x360 Φ430
#3.5 510 390 405 450 660 60 500 □560x420 Φ510
#4 570 420 450 505 740 80 500 □640x480 Φ580
#4.5 635 490 510 565 820 80 600 □720x540 Φ660
#5 685 530 530 600 920 100 600 □800x800 Φ740
#5.5 750 550 590 670 980 100 600 □880x660 Φ820
#6 800 620 635 710 1060 100 700 □960x720 Φ900
#6.5 965 650 715 850 1140 120 700 □1020x800 Φ980
#7 1060 800 855 950 1220 120 800 □1120x840 Φ1050
#8 1220 870 915 1050 1350 120 900 □1280x960 Φ1210
#9 1370 960 1045 1200 1540 150 1000 □1440x1080 Φ1370
#10 1520 1000 1140 1300 1800 150 1000 □1600x1231 Φ1520
외형치수
Motor 1HP 2HP 3HP 5HP 7.5HP 10HP 15HP 20HP 25HP 30HP 40HP 50HP 60HP 75HP 100HP
A 400 400 420 470 500 500 550 550 600 600 600 720 750 750 800
B 95 110 110 110 135 135 135 135 165 165 185 185 185 215 215
e-mail 문의

문의 메일을 보내어 주시면 성실이 답변드리겠습니다.

오류가 발생하였습니다. 다시 한번 확인하여 주십시요.
감사합니다! 이메일이 정상적으로 발송 되었습니다,